仪表盘本体产品见图1,产品最大外形尺寸为343.40 mm x 167.13 mm x 48.01 mm, 塑件平均胶位厚度2.00 mm,塑件材料为PP TD40,缩水率为1.010,塑件质量为208.88克。塑件技术要求为不得存在披峰、注塑不满、流纹、气孔、翘曲变形、银纹、冷料、喷射纹等各种缺陷。

图1 仪表盘本体产品图
仪表盘本体为日本某轿车的仪表盘内部支架。从图1可以看出,塑件结构造型为扁平复杂壳体,动定模均有很多骨位和柱位等,尺寸较大,模具为大型模具。塑件产品图、模具3D图均见附档。塑件材料为PP TD40,材料增加碳酸钙填料,主要是增加塑件的刚性和耐疲劳性,起到吸震和减震作用。
由于塑件尺寸较大,模具设计型腔排位为1出1,注塑机为日钢220吨,JSW220吨注塑机的规格尺寸见图5,模具设计图见图2,模具设计式样书见图4.
模具设计式样书是商品模设计的重要文件。规定了模具的型腔数量、进胶方式、模仁钢材和标准件的品牌等级、模具寿命、注塑机型号和注塑周期等,是模具设计的依据。日本模具的最常见名词术语简单介绍如下:
打合会议----模具检讨会议;勾配----脱模斜度;型缔力----锁模力;金型-----模具;型见本----试模样品;
寸法-----尺寸;先端R------浇口套球面;
模具检讨会在日资企业也叫模具打合会议。检讨产品和模具结构问题点及改善对策,确定模具的分型面、顶出方式和浇口,所有检讨的内容要用红蓝铅笔或铅笔标记在产品图和写进模具式样书里。检讨完成之后,填写相关之检讨记录,并在图纸上盖章,双方签字确认。
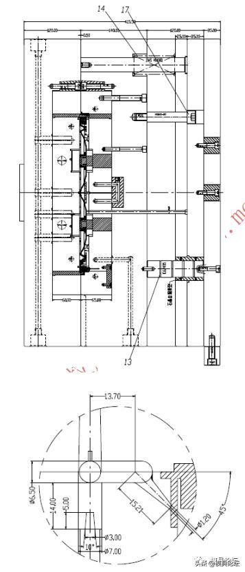
模具导柱导套是整个模具的初级定位,由于导柱和导套孔之间存在 0.01-0.03mm 的间隙,对于大型模具,仅仅依靠导柱和导套来定位显然不够。在模胚四边分别设计了4个圆锥定位件。三级定位是指模仁上设计虎口的精定位,主要保护模具插破面的精确定位。仪表盘本体模具设计了两处三级定位系统,第一是在模胚的导柱和导套周围,设计了虎口定位,第二是在模具的前后模仁四角设计了虎口定位。设计如此多的定位,主要是考虑到仪表盘本体模具属于大型模具,本身存在模仁偏心的设计配置,因此设计有效地定位和导向显得十分重要。为了使锁模力平衡,在分型面设计了平衡块件5.
大型注塑模具的排气是非常重要的。对于出口模具来说,排气必须提前做好分析,重点分析容易困气的区域,把排气设计在模具图上。在镶件的边缘也要磨出排气槽,便于注塑填充。

由于塑件尺寸较大,型腔排位1出1偏心排位,模胚为标准模胚CH5565,前后模仁采用挤紧块定位锁紧。动模B板、方铁、底板之间增加了定位销,保持模具刚性。塑件面积较大,熔融塑料流程较长,浇注系统设计十分关键。考虑到塑件骨位多,孔洞多,影响熔融塑料流动的因素较多,填充阻力较大。因此,浇注系统设计了3点潜伏式浇口进胶,浇口位置在塑件的同一个侧边。流道拉料销设计了锥形拉料销,便于机械手抓取水口料,见模具设计图2流道系统放大图。
塑件的顶出系统采用顶针和司筒顶出。为了使顶出系统顺畅,做了一些创新性设计。设计了中托导柱13,用石墨中托司导向,中托导柱13顶部用定位销固定在B板背面,底部用螺钉固定在动模底板上。这种中托导柱设计的导向性能最佳,克服了传统中托导柱与顶针板垂直度差的弊端。同时中托导柱13也可以起到撑头的作用。为了装模方便,在回针的端面设计了M10螺纹孔,便于收紧顶针板,同时在顶针板设计了限位螺钉17,撑头11和撑头12的顶部均设计了定位销。顶针全部采用日本MISUMI高速钢顶针SKH51。
模具的冷却系统设计见图3所示。前后模均设计了直通运水和水塘,有效地保证了冷却效果。

模具零件的总数达40多种、数量近百个,所以零件的合理标识对设计、生产尤为重要。首先,按模具中各零件所起的作用可以将零件分为4类:模板类、型腔类、结构件类和标准件类。其中模板构成模具的基体,型腔是模具的核心,结构件和标准件是模具的辅助。零件的图号编制即以此为基础,采用3位阿拉伯数字表示。确定零件图号编码规则后,在3D分模时能够将同类零件设定在不同的图层。图号在装配图上按顺序顺时针或逆时针排布:
1)模板从定模固定板到动模固定板以M1、M2、M3……,顺序排布;
2)型腔类零件(定模)以V1、V2、V3……,顺序排布;
3)型芯类零件(动模)以C1、C2、C3……,顺序排布;
相关影片资源迅雷下载推荐
如何通过小程序对接接广告来创收
把握流量风口,将命运抓在自己手中!一、首先小程序是做什么的?小程序是一种不需要下载安装即可使用的应用,由腾讯于2017年1月9日首次推出。这一应用形式能使用户不用再关心应用安装太多的问题,实现了应用“触手可 ...
小程序,如何通过小程序对接接广告来创收
4)滑块类零件以S1、S2、S3……,顺序排布;
5)斜顶类零件以L1、L2、L3……,顺序排布;
6)定模辅助零件以A1、A2、A3……,顺序排布;
7) 动模辅助零件以B1、B2、B3……,顺序排布;
零件编号的具体含义是:首位字母表示零件的类别,后面的数字是零件的顺序号。这样的分类图号编写简单,能够达到零件的分类管理、分类加工的目的。在具体模具设计时,需要做到模具2D图与3D图零件图号一致,并且图纸与模具零件实物一致,并在必要时刻写在模具零件上,便于模具零件将来的维护和更换。
模具在改模时,零件的数量会发生变化。修改过的零件则在图号后面增加A、B、C、D… ,表示不同的版本,新增的零件则按规则编写新的图号。所有新增和修改过的图纸都要更新图纸上的绘图日期,便于生产管理。





图3 动定模运水排列图

图4 模具设计式样书

图5 JSW 220吨注塑机规格资料
模具论坛版权所有
相关影片资源迅雷下载推荐
45种注塑缺陷应对工艺手册
经过多年的经验积累总结出以下不良缺陷:注塑不满、凹陷、熔合缝、料流纹、光泽不好、气孔、黑点、溢边、翘曲变形、脱模不好、云彩、流道断裂、唱片沟纹、光环、麻点气、烧焦、冷料、喷射纹、银纹、飞边、须状斑纹、 ...
小程序,45种注塑缺陷应对工艺手册
标签: 小程序 仪表盘本体注塑模设计+3d